CHF 210
m² / Jahr
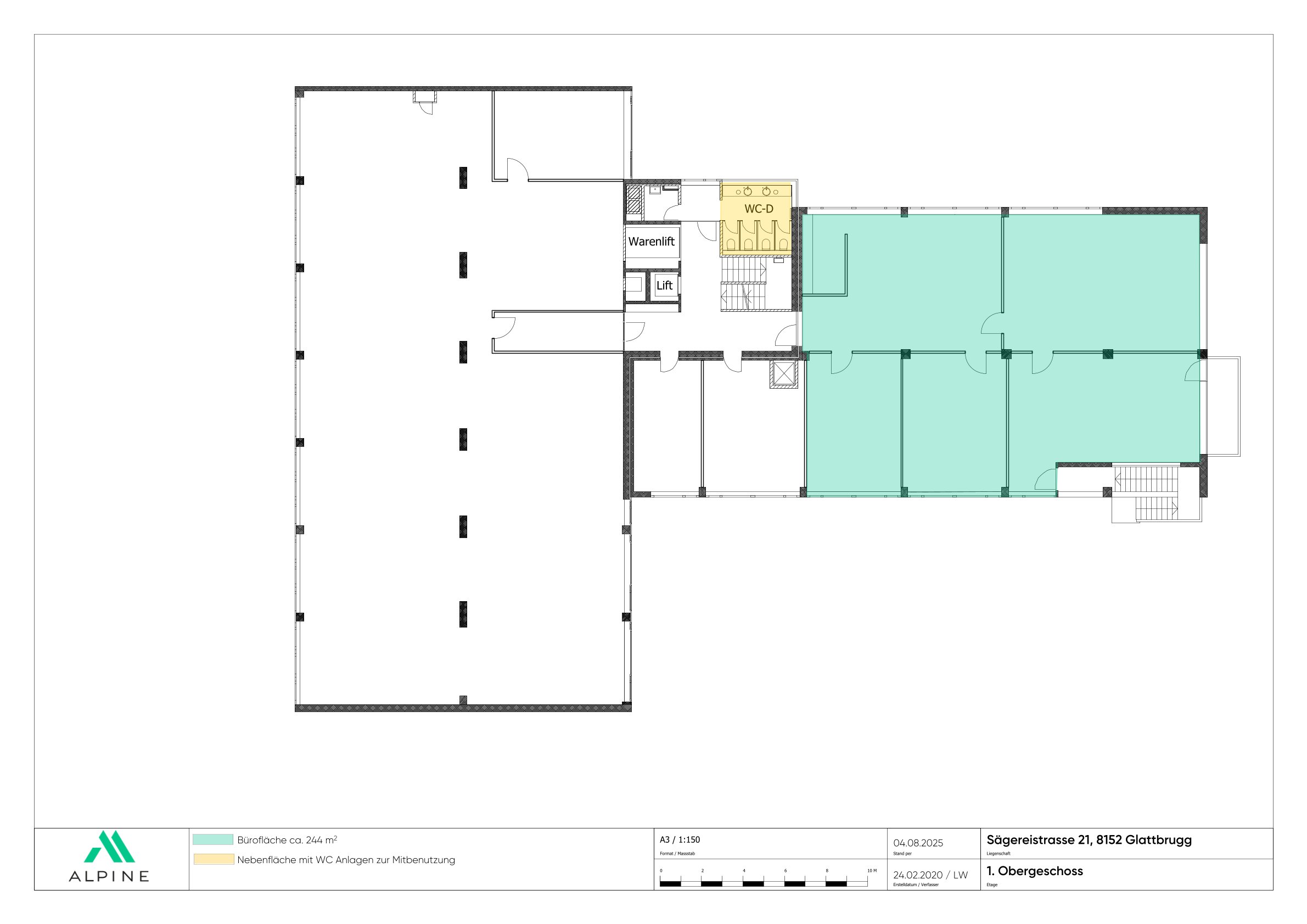
244
m² Fläche
Büro
Objekttyp
- Anzahl Etagen:
- 5
- Baujahr:
- 1969
- Etage:
- 1
- Verfügbar ab:
- Nutzfläche:
- 244 m²
- Raumhöhe:
- 2.7
Beschreibung
Die Bürofläche im 1. OG bietet auf rund 244 m² viel Raum für individuelle Arbeitsbedürfnisse und befindet sich in ausgebautem Zustand. Die flexible Raumaufteilung umfasst mehrere Einzelräume, die sich ideal als Sitzungszimmer oder separate Büros eignen.
Highlights:
- Ausgebauter Zustand
- Teeküche vorhanden
- Zwei separate Zutritte inkl. kleinem Balkon
- Mieterausbau kann durch Eigentümer erstellt werden
- Hauseigenes Restaurant Urban Spice
- Warenanlieferung mit Hebebühne auch für LKW geeignet
- WC-Anlagen für Damen und Herren zur Mitbenutzung
- Duschanlage zur Mitbenutzung
Die Liegenschaft liegt direkt am Bahnhof Glattbrugg. Ein Standort, der sowohl durch seine erstklassige Erreichbarkeit mittels öffentlicher und privater Verkehrsmittel als auch durch seine werbewirksame Präsenz überzeugt. Einkaufs- und Verpflegungsmöglichkeiten können bequem zu Fuss erreicht werden.
Lage:
- Direkt am Bahnhof Glattbrugg
- 11 Minuten zum Zürcher HB
- 6 Minuten zum Flughafen Zürich
- Autobahnanschluss Seebach/Glattbrugg in 2 Minuten
Unsere Geschäftsimmobilien verfügen über flexible Grundrisse und lassen sich ganz nach Ihren Bedürfnissen gestalten. Unser erfahrenes Team unterstützt Sie, gemeinsam mit unseren externen Partnern für Planung und Bau, bei der Realisierung Ihrer Vorstellungen.
Alpine ist ein familiengeführtes Immobilienunternehmen mit Sitz in Zürich und Berlin. Als Bestandshalter sind wir spezialisiert auf Büro- und Geschäftshäuser im Umfeld internationaler Flughäfen. Von der Entwicklung über die Vermietung bis zur Bewirtschaftung von Immobilien bietet Alpine alle Dienstleistungen aus einer Hand an.
Kontaktieren Sie uns und überzeugen Sie sich von unserem Angebot.
Ausstattung
- Aussicht
- Lift
- Balkon / Sitzplatz
- Hebebühne
- Parkplatz
- Wasseranschluss
Distanzen
- Öffentl. Verkehr:
- 190 m
- Einkauf:
- 150 m
- Autobahnanschluss:
- 1400 m









