Preis
auf Anfrage
439
m² Fläche
Büro
Objekttyp
Zur Ablagefläche kopiert
- Anzahl Etagen:
- 9
- Baujahr:
- 2013
- Verfügbar ab:
- 01.10.2026
- Nutzfläche:
- 439 m²
- Raumhöhe:
- 4.6
Beschreibung
Objektbeschreibung:
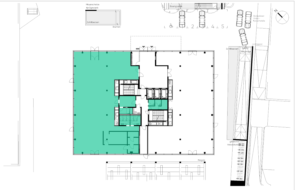
Direkt am Bahnhof Glattbrugg, im Zentrum einer der am stärksten wachsenden Wirtschaftsregionen der Schweiz, in unmittelbarer Nähe zum Flughafen Zürich, vermieten wir diese einzigartige Gastronomiefläche. Die Fläche zeichnet sich durch ihre hohe Sichtbarkeit, die optimale Erreichbarkeit und ein starkes Gästeaufkommen aus. Sie ist vielseitig nutzbar und bietet Raum für moderne Gastronomiekonzepte.
Lage:
- Hohe Frequenzlage: direkte Anbindung an Bahn, Bus und Tram
- Starkes Gäste- & Umsatzpotenzial: über 5000 Arbeitnehmende im Umkreis von nur 15 Gehminuten
- Inspirierendes Umfeld: Dynamische Nachbarschaft aus Unternehmen, Pendlern und Anwohnern ? ideale Mischung für vielseitige Gastronomieideen
Ausstattung & Infrastruktur:
- Moderne Gastronomiefläche: ideale Sichtbarkeit und flexible Raumaufteilung
- Infrastruktur auf hohem Standard: sofort übernahmebereit
- Aussenbestuhlung möglich
- Diversität: geeignet für verschiedene gastronomische Konzepte (Café, Restaurant, Take-Away, Hybridmodelle, etc.)
Gesucht:
Wir suchen einen professionellen Betreiber oder ein engagiertes Team, das das volle Potenzial der Räumlichkeiten ausschöpft. Eine nachhaltige Positionierung sowie die Qualitätsorientierung in Angebot und Service stehen bei uns an erster Stelle.
Haben wir Ihr Interesse geweckt? Kontaktieren Sie uns noch heute und erfahren mehr über diese besondere Chance.
Fordern Sie die detaillierten Unterlagen an und sichern Sie sich diese einmalige Gelegenheit, Teil des aufstrebenden Wirtschaftsraums Zürich-Flughafen zu werden.
Unsere Geschäftsimmobilien verfügen über flexible Grundrisse und lassen sich ganz nach Ihren Bedürfnissen gestalten. Unser erfahrenes Team unterstützt Sie, gemeinsam mit unseren externen Partnern für Planung und Bau, bei der Realisierung Ihrer Vorstellungen.
Alpine ist ein familiengeführtes Immobilienunternehmen mit Sitz in Zürich und Berlin. Als Bestandshalter sind wir spezialisiert auf Büro- und Geschäftshäuser im Umfeld internationaler Flughäfen. Von der Entwicklung über die Vermietung bis zur Bewirtschaftung von Immobilien bietet Alpine alle Dienstleistungen aus einer Hand an.
Kontaktieren Sie uns und überzeugen Sie sich von unserem Angebot.
Ausstattung
- Lift
- Parkplatz
- Garage
- Minergie Bauweise
Distanzen
- Öffentl. Verkehr:
- 350 m
- Einkauf:
- 290 m
- Autobahnanschluss:
- 1700 m









